新煤网移动版

主页 > 技术资料 > 科技论文

厚煤层掘进巷道过破碎带超前支护参数优化研究

★ 科技与工程 ★

厚煤层掘进巷道过破碎带超前支护参数优化研究

梁沙平1 陆银龙2,3 贺梦奇2,3 郭 鹏2,3

(1.山西煤炭进出口集团左云韩家洼煤业有限公司,山西省大同市,032000;2.中国矿业大学深部岩土力学与地下工程国家重点实验室,江苏省徐州市,221116;3.中国矿业大学力学与土木工程学院,江苏省徐州市,221116)

摘 要 以山西韩家洼矿22#煤层二采区22205运输巷掘进工作面的具体工程地质条件为背景,运用FLAC3D建立了厚煤层掘进巷道过破碎带超前支护的三维数值计算模型,系统研究不同超前支护参数对破碎区巷道围岩应力分布、变形与破坏特征的影响规律。在此基础上,合理设计与优化了22205厚煤层运输巷过破碎带的超前支护方案与参数,并进行了现场工程实践。现场矿压监测数据表明,采用优化后的超前钢管临时支护方案与参数显著增强了破碎区围岩承载能力,有效控制了破碎区围岩变形的发展,保障了矿井安全高效生产。

关键词 掘进巷道 破碎带 超前支护参数 数值模拟 厚煤层

中图分类号 TD353

文献标识码 A

移动扫码阅读

引用格式:梁沙平,陆银龙,贺梦奇等. 厚煤层掘进巷道过破碎带超前支护参数优化研究[J]. 中国煤炭,2020,46(5):96-103.

Liang Shaping, Lu Yinlong, He Mengqi, et al. Research on advance support parameter optimization for roadway driving through fracture zone in thick coal seam[J]. China Coal, 2020, 46(5):96-103.

基金项目:国家自然科学基金(51874288)

Research on advance support parameter optimization for roadway driving through fracture zone in thick coal seam

Liang Shaping1, Lu Yinlong2,3, He Mengqi2,3, Guo Peng2,3

(1.Zuoyun Hanjiawa Coal Industry Co., Ltd., Shanxi Coal Import & Export Group Co., Ltd., Datong, Shanxi 032000, China;2. State Key Laboratory for Geomechanics & Deep Underground Engineering, China University of Mining and Technology, Xuzhou, Jiangsu 221116, China;3. School of Mechanics and Civil Engineering, China University of Mining and Technology, Xuzhou, Jiangsu 221116, China)

Abstract Based on the specific engineering geological conditions of 22205 driving face of transportation roadway in second panel of No. 22 coal seam in Hanjiawa Coal Mine in Shanxi, the 3D numerical calculation model for advanced support of thick coal seam roadway driving through fracture zone was established by using FLAC 3D software. The effects of different advanced support parameters on stress distribution, deformation and failure characteristics of surrounding rock of driving roadway in fracture zone were systematically studied. On this basis, advanced support scheme and parameters for 22205 roadway driving through fracture zone were reasonably proposed and optimized, and the field engineering practice was carried out. The in-site mine pressure monitoring results showed that optimized advance temporary support scheme and parameters with steel tube could significantly enhance the bearing capacity of surrounding rock, effectively control the development of surrounding rock deformation in the fracture zone, and ensure the safe and efficient production of mine.

Key words driving roadway, fracture zone, advance support parameter, numerical simulation, thick coal seam

在矿井建设与巷道开拓过程中,部分巷道不可避免地要布置在断层破碎带等不良地段[1-2]。这种断层破碎区域不仅围岩破碎,而且周围存在异常的构造应力场;附近煤岩体受其影响极易出现离层、破碎,甚至发生局部冒顶事故;从而给巷道掘进和支护带来极大困难,严重影响巷道围岩与支护结构的长期稳定及安全,已成为影响矿井正常安全生产的关键技术难题之一[3-4]

目前,不少学者已对断层破碎区巷道围岩变形破坏机理进行了深入研究[5-6],得出巷道掘进过程中围岩应力、位移及支护结构的受力变化规律[7-8],揭示了断层破碎区巷道围岩的稳定性演化规律[9-12],并提出了超前锚杆预加固、大管棚超前支护、分布耦合支护等超前支护技术方案[13-14],应用中取得了一定的效果。但是,目前在断层破碎区巷道围岩超前支护参数的合理选择与优化方面仍需开展进一步的深入研究。

为此,结合山西韩家洼矿22#煤层二采区22205厚煤层运输巷掘进工作面过破碎带的具体工程地质条件,利用FLAC3D建立了厚煤层掘进巷道过破碎带超前支护的三维数值计算模型,系统研究不同超前支护参数对巷道围岩稳定性的影响规律,优化厚煤层掘进巷道过破碎带的超前支护参数,并在现场进行工程实践。

1 工程概况

山西韩家洼矿22#煤层二采区22205运输巷的地面标高为1545~1573 m,井下标高为1265~1275 m。22#煤层平均煤厚11.5 m,顶板自下而上依次为2.3 m厚粉砂岩、5.7 m厚砂质泥岩和 8.8 m 厚中粒砂岩,底板为砂质泥岩。22205运输巷采用掘进机割煤,沿煤层底板掘进。巷道设计为矩形断面,巷道掘进宽度4.5 m,掘进高度3.0 m。

受地质构造的影响,22205运输巷顶板破碎严重,顶板煤层节理发育并伴有小断层,在掘进期间已多次出现破碎顶板伴随夹矸大面积垮落的现象,导致了巷道出现不同程度的超高,如图1所示,严重影响了巷道的快速掘进和矿井正常安全生产。

为了防止22205运输巷掘进过程中冒顶事故的继续发生,根据现场地质勘查资料,考虑对22205运输巷里程235~240 m处的顶板破碎段开展超前钢管临时支护试验。为科学合理地选择超前支护参数,采用FLAC3D对超前支护参数进行数值模拟优化研究,后在现场进行工程实践。

图1 韩家洼矿22205运输巷过破碎带冒顶后支护方案

2 顶板超前钢管支护参数优化数值模拟

2.1 数值模型的建立

为研究掘进过程中超前支护参数对破碎顶板稳定性的影响规律,基于22205运输巷的具体工程地质条件,利用FLAC3D软件建立了厚煤层掘进巷道过破碎带超前支护的三维数值计算模型,如图2所示。

图2 厚煤层掘进巷道过破碎带三维数值计算模型

模型尺寸为50 m×40 m×55 m,破碎带宽度为5 m,模型网格划分为99000个单元。模型选取摩尔—库仑本构模型,各岩层所用的计算参数如表1所示。数值计算模型中,超前钢管采用Cable单元按照全长锚固方式进行等效模拟,杆体横截面积为3.8 cm2,体积模量为45 GPa,最大拉伸极限为250 kN,锚固剂刚度为17.5 MPa,锚固剂粘聚力0.2 MPa。模型底部、两侧边界为法向位移约束,上边界受垂直地应力作用,大小为5.58 MPa。

当巷道掘进至破碎带时,采用超前钢管进行支护,巷道过破碎带超前钢管支护数值计算模型如图3所示。根据现场条件,选择直径为40 mm钢管,钢管的长度、间距、排距、仰角等参数对超前支护效果的影响通过数值模拟优化确定,具体的数值模拟方案如表2所示。

2.2 无超前支护巷道顶板变形破坏特征

无超前支护时巷道顶板z=15.5 m处水平切面上水平应力分布云图和x=25 m处纵向切面上垂直应力云图见图4。从图4中可以看出,破碎带中巷道顶板的水平应力和垂直应力均明显比非破碎带区域的应力要小,且破碎带中巷道顶板的应力集中区到巷道表面位置较远,这表明破碎带中巷道顶板浅部围岩承载能力极小,极易在自重作用下发生冒落。

表1 数值模型中岩层物理力学参数

岩层名称密度/(kg·m-3)体积模量/GPa剪切模量/GPa粘聚力/MPa内摩擦角/(°)抗拉强度/MPa中粒砂岩254021.0714.5112.60321.23砂质泥岩24009.959.099.00311.50粉砂岩246019.508.132.75381.84煤13804.001.602.00250.43破碎带20000.300.120.0009250.02

表2 超前钢管支护参数数值模拟方案

方案编号仰角/(°)长度/m间距/m排距/m排数1151.80.21.222301.80.21.233451.80.21.234601.80.21.245901.80.21.256451.40.21.237451.60.21.238451.80.21.239452.00.21.2310452.20.21.2311452.00.11.2312452.00.21.2313452.00.41.2314452.00.61.2315452.00.81.2316452.00.20.6517452.00.20.8418452.00.21.0419452.00.21.2320452.00.21.43

图5进一步给出了无超前支护时巷道顶板下沉量曲线。图5(a)中,AB、CD、EF为3条布置在巷道顶板表面的监测线,其中AB沿着巷道走向,CD和EF沿着巷道宽度方向(分别位于破碎区和非破碎区中)。从图5中可以看到,在非破碎区中巷道顶板下沉量较小,顶板处于稳定状态;而当巷道掘进至破碎区时,顶板下沉量急剧增大,最大下沉量约为非破碎区中的4.24倍,巷道顶板支护和维护变得十分困难。

图3 巷道过破碎带超前钢管支护数值计算模型

2.3 超前支护参数对巷道顶板应力分布的影响规律

为分析超前支护参数对破碎区巷道顶板应力分布与围岩稳定性的影响规律,定义表征巷道顶板水平应力分布的两个特征参数kd,如图6所示。其中,k表示顶板水平应力集中系数,取巷道顶板应力集中区中的最大水平应力与原岩应力的比值;d表示顶板水平应力集中区的位置,取巷道顶板应力集中区中的最大水平应力点到巷道顶板表面的距离。从图6中可以看到,采用超前支护以后,破碎区中巷道顶板应力集中区距离巷道表面距离d减小,且应力集中系数增大,这表明了采用超前支护后巷道浅部围岩的承载能力得到了提高。

图4 无超前支护情况下巷道围岩应力分布云图

图5 无超前支护情况下巷道顶板监测线的垂直位移曲线

图6 巷道顶板水平应力分布特征参数的定义

图7进一步给出了不同超前支护参数(包括钢管仰角、钢管长度、钢管间距、钢管排距等)影响下巷道顶板水平应力分布特征参数(kd)的变化规律。从图7(a)可以看到,随着钢管仰角的增大,巷道顶板水平应力集中系数k呈现出先增大后减小的趋势,而顶板应力集中距离巷道表面距离d呈现出先减小后增大的趋势。这表明随着钢管仰角的逐渐增大,超前支护对巷道顶板的控制作用是“先增强后减弱”。最佳的钢管布置仰角约为30°左右,此时巷道顶板的承载能力最高(k值最大,d值最小)。

从图7(b)可以发现,随着超前钢管长度的增加,k逐渐增大,而 d逐渐减小。这表明,超前钢管长度越长,对巷道顶板的控制作用越强。但是,当钢管长度增加到2 m后,进一步改变超前钢管的长度对kd影响较小。

从图7(c)和图7(d)可以发现,随着超前钢管的间距和排距的增大, k逐渐减小,而d逐渐增大。这表明,超前钢管的间排距越大,其对顶板的控制效果越不利。

图7 不同超前支护参数影响下破碎区巷道顶板水平应力分布特征参数(kd)的变化规律

2.4 超前支护参数对巷道顶板变形破坏特征的影响规律

不同超前支护参数影响下的破碎区巷道顶板最大下沉量的变化规律如图8所示。从图8(a)中可以看到,随着超前钢管仰角的逐渐增大,破碎区巷道顶板最大下沉量表现出先减小后增大的趋势。当超前钢管仰角为30°时,此时巷道顶板下沉量最小(最大下沉量约374 mm)。这表明,过大或过小的超前钢管仰角对巷道顶板维护都是不利的,最佳的钢管布置仰角约30°。

从图8(b)可以发现,随着超前钢管长度的增大,破碎区巷道顶板最大下沉量逐渐减小。当超前钢管长度超过2 m以后,继续增加钢管长度对顶板的最大下沉量影响很小。这表明,过长的超前钢管并不能显著地提高围岩浅部锚固体的承载能力,最佳的超前钢管长度为2 m左右。

从图8(c)和图8(d)可以发现,随着超前钢管布置间距、排距的增大,破碎区巷道顶板最大下沉量也逐渐增大。这表明,越小的超前钢管间排距布置越有利于保持顶板围岩的完整性和承载能力。结合数值模拟结果,同时考虑到巷道的掘进效率与支护成本,最佳的超前钢管布置间距取值为0.1~0.3 m,排距取值为0.6~1.2 m。

图8 不同超前支护参数影响下破碎区巷道顶板最大下沉量的变化规律

3 工程应用

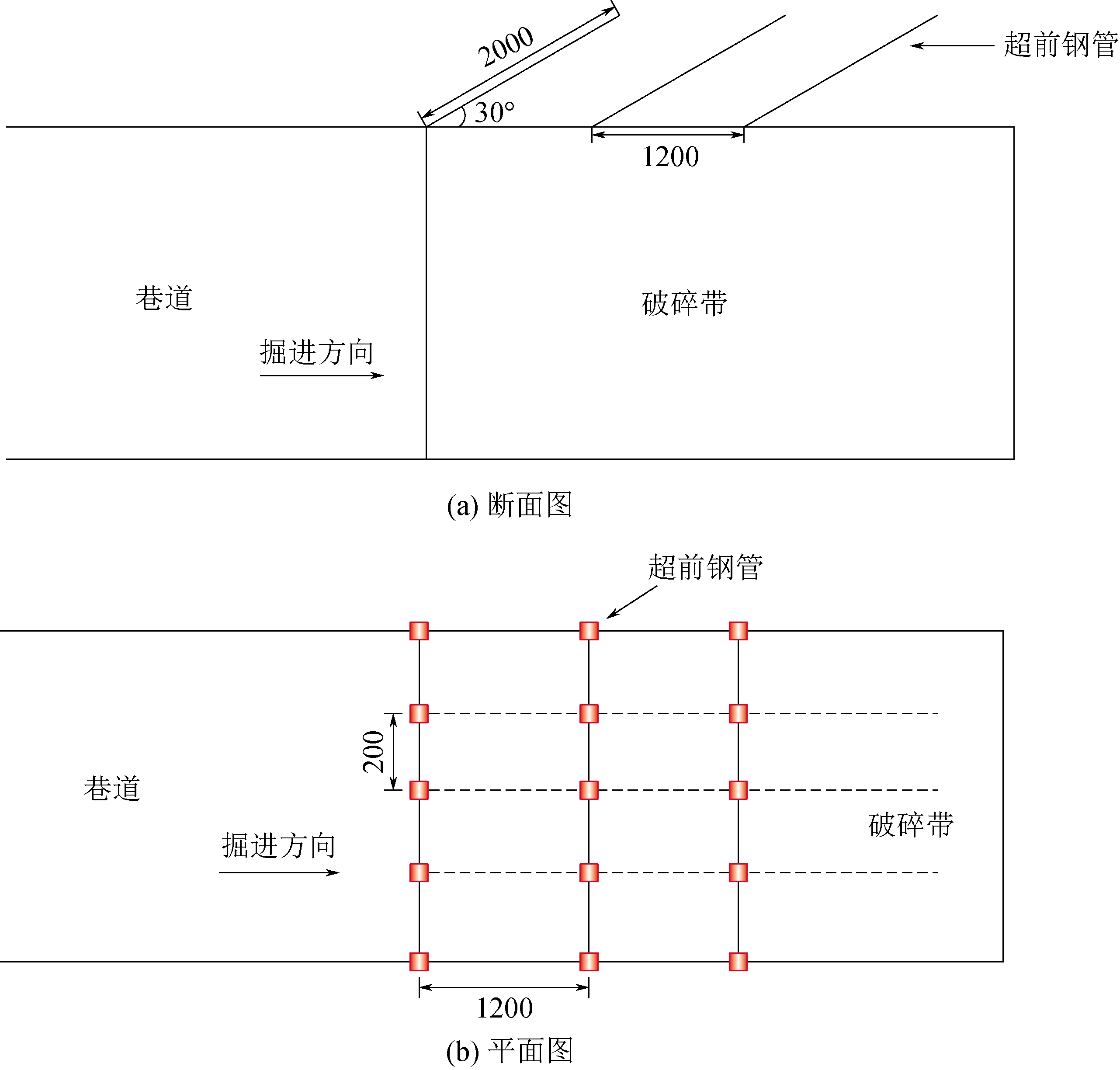
基于上述数值模拟分析结果,结合22205运输巷的具体工程地质条件与生产技术条件,提出了22205运输巷掘进巷道的超前钢管支护技术方案,如图9所示。

图9 二采区22205运输巷超前钢管支护方案图

超前钢管临时支护使用直径40 mm钢管制作,每根钢管长2.0 m,钢管向前仰角30°,间距为200 mm。过破碎带时掘进循环进尺0.8 m,最大控顶距1.0 m,最小控顶距0.2 m。

当22205运输巷采用超前临时支护掘进后,立即采用锚带网索联合支护方式作为永久支护。其中巷道顶板采用4根ø17.8 mm×6300 mm锚索及2根ø17.8 mm×11800 mm锚索,锚索预应力不小于130 kN,锚固力不小于200 kN;巷道两帮采用ø18 mm×2200 mm高强螺纹钢锚杆,间排距 0.9 m×0.8 m,锚杆扭矩不小于120 N·m;钢带采用220 mm×4 mm×4300 mm的W型钢带。

为了监测巷道支护效果,在22205运输巷掘进巷道过破碎带区域分别布设2个顶板表面位移观测断面,2个顶板深部位移观测断面和2个顶板离层仪观测断面。每天设专人观察该段巷道顶板矿压显现规律,并记录分析数据。现场监测获得的顶板深部位移变化曲线以及顶板表面位移变化曲线如图10所示。

图10 二采区22205运输巷现场矿压监测结果

从图10(a)中可以看到,在观测期内巷道顶板围岩深部6 m范围内位移小于30 mm,且顶板深部位移已出现收敛。从图10(b)中可以看到,在观测期内1#观测点处顶板下沉量为86 mm,2#观测点处顶板移近量为87.5 mm,巷道施工完成40 d后巷道变形量开始收敛。这表明,采用超前钢管临时支护方案和锚带网索永久支护方案后,破碎区巷道围岩承载能力得到加强,巷道顶板变形量和变形速度得到了有效控制,巷道无漏顶、冒顶事故的发生,有力地保障了矿井的安全高效生产。

4 结论

(1) 厚煤层掘进巷道过破碎带超前支护的三维数值计算结果表明,随着钢管仰角的增大,超前支护对巷道顶板的控制作用是“先增强后减弱”,最佳的钢管布置仰角约为30°左右。

(2)超前钢管长度越长,其对巷道顶板的控制作用越强。但是,当钢管长度增加至一定程度以后,进一步改变超前钢管的长度对提高巷道浅部围岩的承载能力影响较小。随着超前钢管布置间排距的增大,巷道顶板围岩的完承载能力快速降低。

(3)根据数值模拟结果,合理设计与优化了韩家洼矿22205厚煤层运输巷过破碎带的超前支护方案与参数,并进行了现场工程实践。现场矿压监测数据表明,采用优化后的超前钢管临时支护方案与参数,破碎区围岩承载能力得到显著增强,无漏冒顶事故发生,有力地保障了矿井安全高效生产。

参考文献:

[1] 赵毅鑫,姜耀东,孟磊等.超前管棚注浆支护技术在极复杂断层带中的应用[J].采矿与安全工程学报,2013,30(2):262-266.

[2] 勾攀峰,胡有光.断层附近回采巷道顶板岩层运动特征研究[J].采矿与安全工程学报,2006,23(3):285-288.

[3] 严红,何富连,徐腾飞. 深井大断面煤巷双锚索桁架控制系统的研究与实践[J]. 岩石力学与工程学报,2012,31(11): 2248-2257.

[4] 张日林,王家臣,朱建明. 大断面托顶煤巷道支护参数优化研究[J]. 中国矿业,2012,21(12): 96-99.

[5] 李海成. 掘进巷道过断层破碎带支护设计优化措施[J]. 冶金与材料,2019,39(4):32-34.

[6] 张飞. 煤巷过断层破碎带支护工艺优化设计[J]. 江西煤炭科技,2017(3): 50-52.

[7] 伊丽娟,赵洪,徐青云. 巷道穿过断层影响破碎带支护技术研究[J]. 煤炭工程,2018,50(4): 48-50.

[8] 程新春. 煤矿掘进巷道过断层破碎带支护技术 [J]. 现代矿业,2017,33(7): 187-188.

[9] 朱俊. 锚杆锚索联合支护在大断面不稳定围岩煤巷中的应用[J]. 山东煤炭科技,2019(9): 37-38,41.

[10] 孟庆斌,韩立军,乔卫国等. 极弱胶结地层煤巷锚网索耦合支护效应研究及应用[J]. 采矿与安全工程学报,2016,33(5): 770-778.

[11] 杨会军,胡春林,谵文武等.断层及其破碎带隧道信息化施工 [J]. 岩石力学与工程学报,2004,23(22):3917-3922.

[12] 刘泉声,张伟,卢兴利等. 断层破碎带大断面巷道的安全监控与稳定分析 [J]. 岩石力学与工程学报,2011,29(10): 1954-1962.

[13] 王伟. 隧道断层破碎带超前支护施工技术 [J]. 石家庄铁路职业技术学院学报,2019,18(3): 38-41.

[14] 张景公. 过断层破碎带条件下岩巷掘进超前支护技术 [J]. 煤炭技术,2012,31(6): 90-91.

作者简介:梁沙平(1968-),男,山西盂县人,汉族,大学本科学历,主要从事采矿工程方面的研究工作。E-mail:517650489@qq.com。

(责任编辑 郭东芝)

(责任编辑:admin)